Project Highlights:
- Engineering and equipment supply under one roof with reduced interface and thus saving in time.
- Detailed Engineering design in Australia to ensure compliance with AS1210 standards.
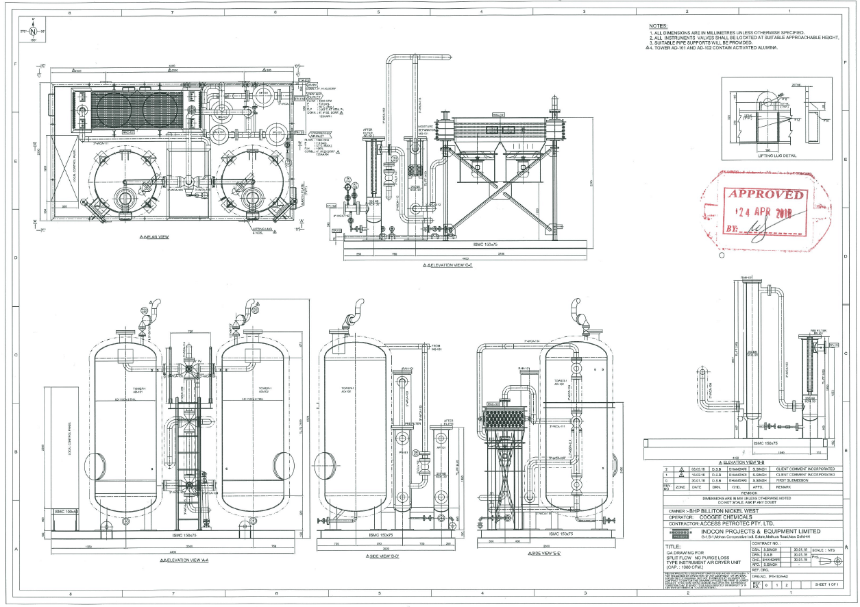
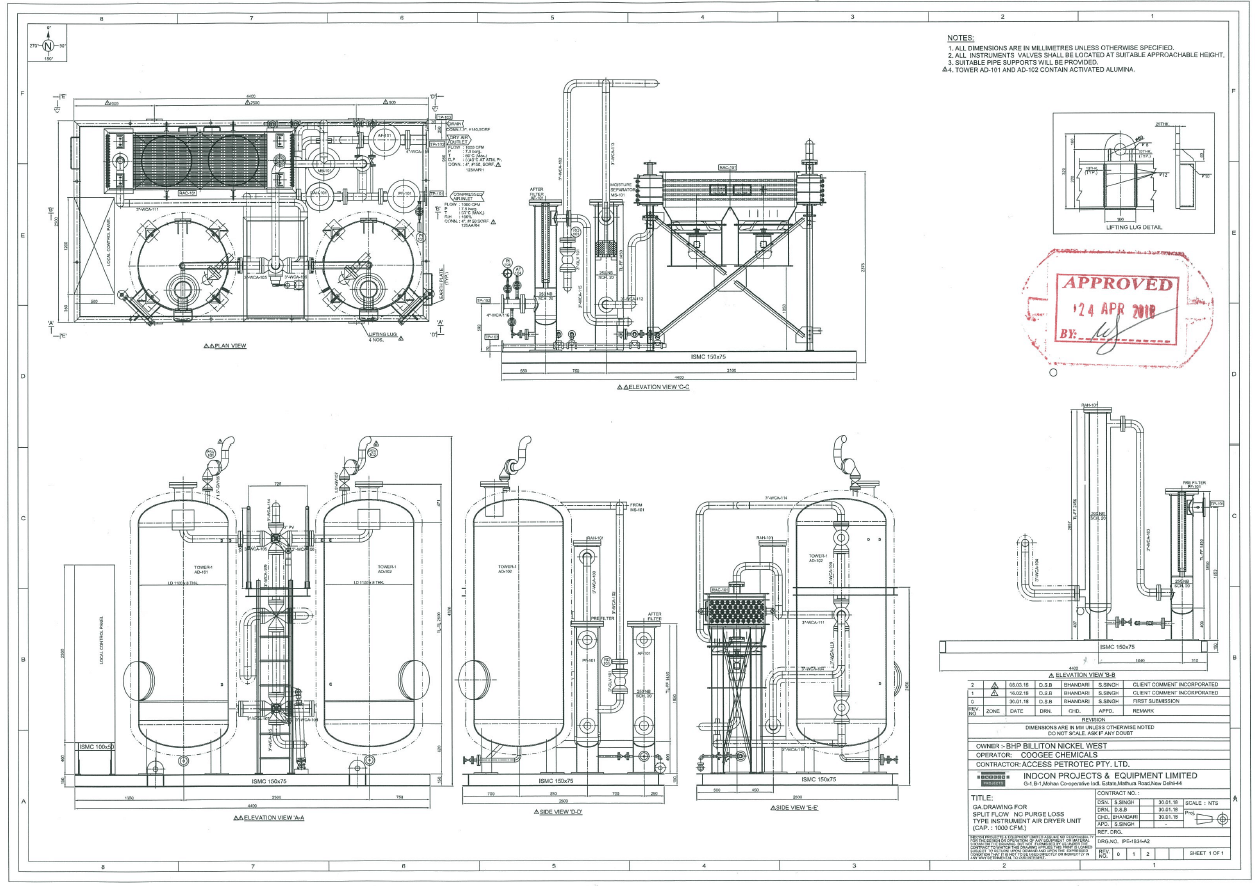
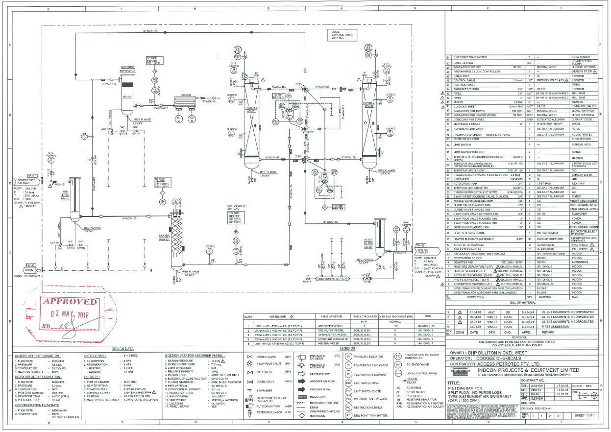
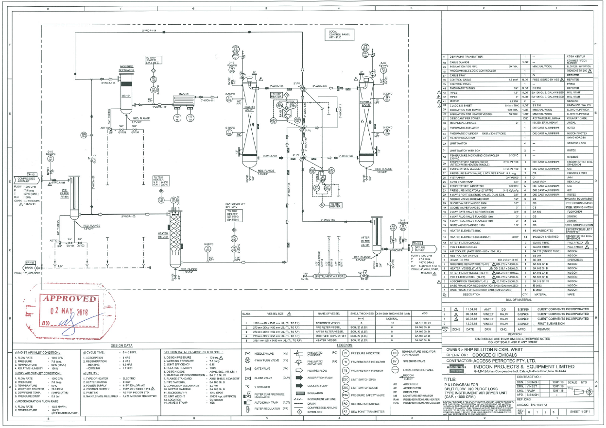
- Unique split flow and purge-less air dryer design with elimination of any emissions.
- The air dryer and auxiliary components were all manufactured onto a skid for ease of use and transport.
- Stainless Steel cladding and aluminium wool insulation were applied to all surfaces exceeding 60⁰C.
- All pressure vessels on skid ASME U-Stamp approved and compliant to A S1210 standards.
- Pre-Commissioning and On-Site commissioning were successful with dew point of up to -70C achieved
- Manufacturing Documentation (MDR) in compliance with AS1210 and AS445
Project Description:
BHP Billiton transports Sulphuric Acid from Kalgoorlie Nickel Smelter to Coogee Chemicals in Kwinana via rail mounted acid containers. These containers are unloaded at Coogee Rail terminal via pneumatic air. This pneumatic air is supplied by 2 CSX75 Sullair Air Compressors. There no was dryer installed at Coogee Terminal resulting in the corrosion of the Sulphuric Acid containers.
Access Petrotec simulated the mole fraction of water in fully saturated air at 53°C and simulations reveal that 22.45kg/hr of water will have to be removed from the air. Access Petrotec delivered a purge-less split flow air dryer to remove the required moisture from the air.
Project Deliverables:
1 Detailed Engineering Design
Access Petrotec carried out detailed engineering design in compliance with the latest AS1210 standards. Additionally, Access Petrotec created the equipment specification in compliance to BHP and Coogee Standards and Procedures
2 Fabrication and Supply of Equipment
Fabrication of the skid mounted air dryer carried out at facilities in Faridabad (Delhi), India in compliance with AS1210 and AS4458. A Siemens S7 200 Programmable Logic controller was also integrated with the skid.
3 Documentation
Manufacturing Data Records (MDR) of the air dryer skid were prepared in compliance with AS1210 and AS 4458.
Project Information
- Categories: Equipment Supply and Installation
- Client: BHP Billiton / Coogee Chemicals
- Type: Air Dryer for Sulphuric Acid Unloading Facility m2
- Location: Kwinana Refinery WA





